勝山市郡町2丁目













・井戸水使用
・浄化槽使用(整備費用 約¥46,000/年)
・ガスキッチン
・車庫あり(2台分。車高低め)
・玄関前と屋根に融雪あり(井戸水使用)
・浴室とトイレは2010年にリフォーム済み
・浄化槽使用(整備費用 約¥46,000/年)
・ガスキッチン
・車庫あり(2台分。車高低め)
・玄関前と屋根に融雪あり(井戸水使用)
・浴室とトイレは2010年にリフォーム済み
・空き家期間が短いため、状態が良い物件です。
・部屋数、収納スペースが多く、大人数の家族や民泊物件などに適しています。
・浴室に暖房設備があり、衣類乾燥も可能です。(灯油使用)
・前面道路は除雪がされる広い道路です。
・部屋数、収納スペースが多く、大人数の家族や民泊物件などに適しています。
・浴室に暖房設備があり、衣類乾燥も可能です。(灯油使用)
・前面道路は除雪がされる広い道路です。
物件情報
物件種別
売一戸建て住宅
物件種目
中古一戸建て
所在地
勝山市郡町2丁目1-39
交通
えちぜん鉄道勝山線勝山駅 徒歩28分
小学校
勝山市立村岡小学校 334m
中学校
勝山市立勝山中部中学校 53m
現況
空家
引渡可能時期
即時
価格
350万円
土地面積
実測 544.92㎡
建物構造
木造、一部RC
階建
地上3階
OPEN
CLOSE
築年月
昭和52年6月
建物面積
1階32.94㎡(車庫部分)、2階187.88㎡、3階149.53㎡ 延床面積370.35㎡
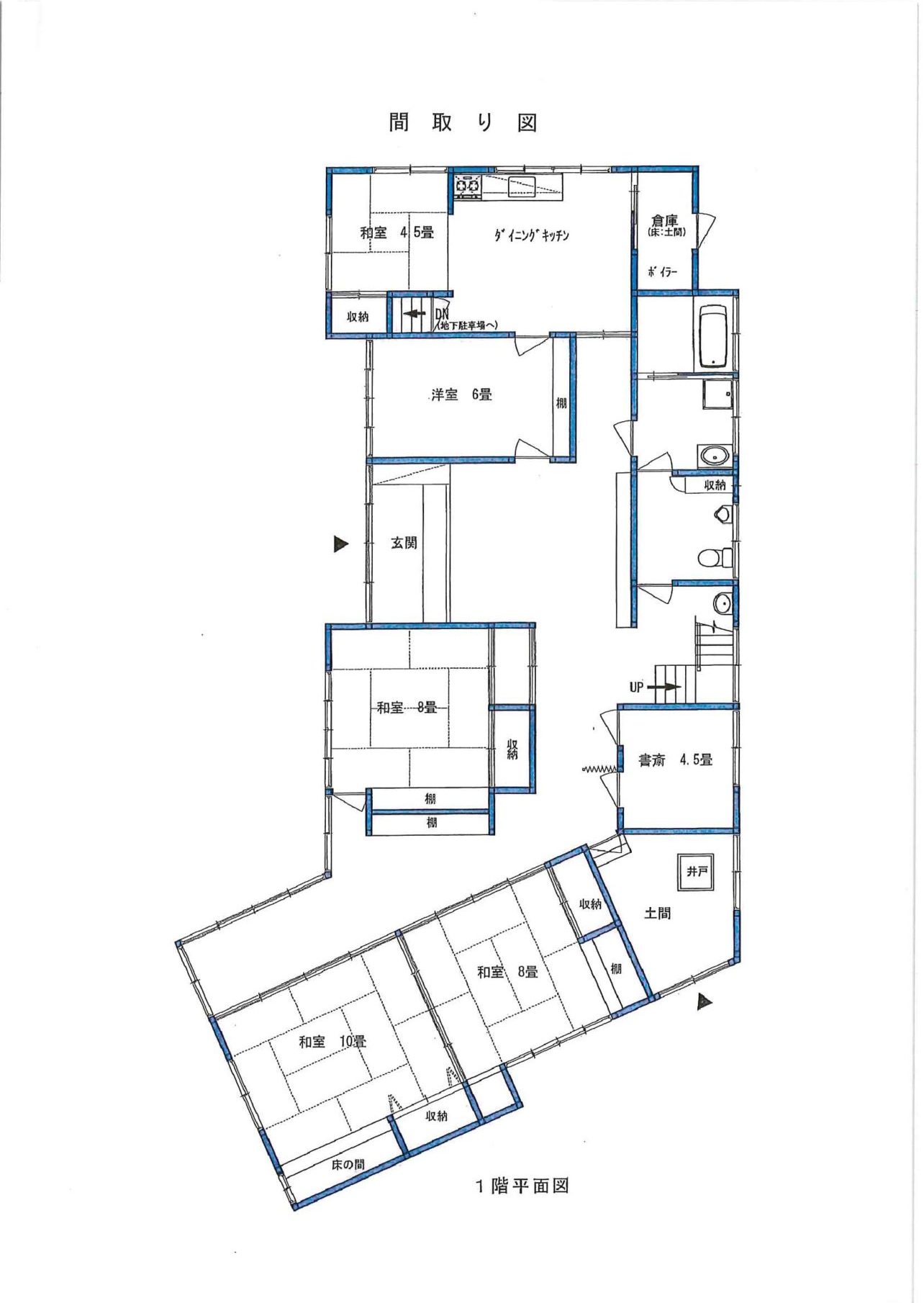
間取り
13K(和室4.5帖、和室8帖、和室8帖、和室8帖、和室8帖、洋室4.5帖、洋室5帖、洋室6帖、洋室8帖、洋室8.5帖、洋室9帖、洋室13帖)
バルコニー・庭
バルコニー:無 庭:有
駐車場
車庫あり
その他一時金
なし
土地権利
普通賃借権 地代:301,000円/年 借地期間:30年
地目
宅地
都市計画
非線引区域
用途地域
第一種中高層住居専用地域
建ぺい率・容積率
建ぺい率:60% 容積率200%
接道
【一方】公道(舗装有)南東側 接面:20m
セットバック
無
建築確認
有
取引態様
一般媒介
報酬
分かれ